hollandwest gebruikt cookies om de website naar behoren te laten werken, om functies voor social media te bieden en om onze website te analyseren. Op onze website kun je ons Cookiebeleid en AVG & Privacybeleid vinden.

Hoogewaard 121, Koudekerk Aan Den Rijn

Omschrijving

PRETTIG WONEN IN EEN INSTAPKLARE WONING IN EEN RUSTIGE, FIJNE GROENE BUURT

Gerenoveerde woning
Ruime achtertuin
Rustige ligging
Alle overige voorzieningen in de directe nabijheid
Voldoende parkeergelegenheid

KADASTER
Gemeente Koudekerk aan den Rijn, sectie B, nummer 4963, groot 2 are 12 centiare
De exacte afmeting is bekend na kadastrale uitmeting

ENERGIELABEL

De woning 2396 AM- Koudekerk aan den Rijn heeft een energielabel G
Het energielabel is geldig tot 03-11-2035
Lees meer op www.energielabel.nl/woningen

ALGEMEEN
Bij binnenkomst valt meteen de praktische indeling op, links bevindt zich de keuken met een houten aanrechtblad en bijpassende spatbladen, 4 pits gaskookplaat en afzuigkap. Vanuit hier heb je een directe verbinding naar de woonkamer en de volledig betegelde badkamer, die is uitgerust met een inloopdouche, douchedeur en toilet. Recht voor je leidt de trap naar de slaapkamer.
Warme, neutrale tinten en natuurlijke materialen zorgen voor een sfeer van comfort en rust. Grote ramen laten het daglicht rijk binnenstromen en maken de ruimte nog lichter en ruimtelijker.

Nieuwsgierig geworden? Instapklaar, sfeervol en klaar om te bewonen, ervaar het zelf tijdens een bezichtiging!

INDELING
Begane grond
Bij binnenkomst bevindt de keuken zich aan de linkerkant, uitgevoerd met een houten aanrechtblad en bijpassende spatbladen. Tevens is hier ook de wasmachine gesitueerd. Terwijl u kookt, geniet u van het uitzicht op de ruime, groene tuin. Hier is ook voldoende plek voor een gezellige zithoek om te relaxen, terwijl de zon op elk moment van de dag een plekje in de tuin verwarmt. In de tuin staat bovendien een handig tuinhuisje, ideaal voor het opbergen van fietsen en andere spullen. De gehele woning is keurig afgewerkt en volledig gestukt, wat zorgt voor een strakke en moderne uitstraling. Vanuit de keuken loopt u moeiteloos door naar de woonkamer en de volledig betegelde badkamer, uitgerust met een inloopdouche, douchedeur en toilet. De badkamer volledig betegeld is uitgerust met een inloopdouche, douchedeur en toilet. Recht voor u leidt de trap naar de slaapkamer op de eerste verdieping. De stijlvolle woonkamer straalt rust en comfort uit. De zachte, neutrale kleuren zorgen voor een warme en uitnodigende sfeer. Grote ramen met lichte gordijnen laten volop daglicht binnen, wat de ruimte extra ruimtelijk maakt. Een ideale plek om tot rust te komen. De eethoek vormt een warme, uitnodigende plek in het huis. Een plek waar comfort en sfeer samenkomen.

1e verdieping
Via de trap bereikt u de 1e verdieping, waar een ruime en sfeervolle slaapkamer op u wacht. Authentieke houten balken geven de kamer karakter, terwijl de moderne afwerking voor rust en overzicht zorgt. Dankzij de twee ramen stroomt natuurlijk licht door de ruimte, waardoor de kamer open en luchtig aanvoelt. Een perfecte plek om te ontspannen.

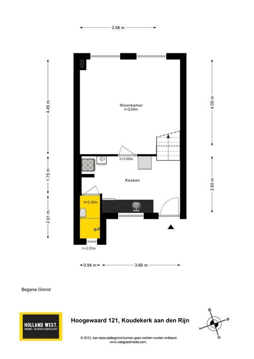
AFMETINGEN
Zie bijgaande plattegrondtekeningen.

BIJZONDERHEDEN
-Instapklare en goed onderhouden woning
-Royale slaapkamer
-Voorzien van dubbel glas
-In een rustige straat en speeltuintjes om de hoek
-Volledig gestukt
-Ruimte tuin met veel groen en privacy
-Voldoende parkeergelegenheid, scholen en winkels in de omgeving
-Uitstekende verbindingen naar omliggende steden
-Schutting geplaatst in 2022

Toelichtingsclausule NEN2580
De Meetinstructie is gebaseerd op de NEN2580. De Meetinstructie is bedoeld om een meer eenduidige manier van meten toe te passen voor het geven van een indicatie van de gebruiksoppervlakte. De Meetinstructie sluit verschillen in meetuitkomsten niet volledig uit, door bijvoorbeeld interpretatieverschillen, afrondingen of beperkingen bij het uitvoeren van de meting. Het nen2580 meetrapport wordt aan de koopakte gekoppeld.
Deze informatie is door ons met de nodige zorgvuldigheid samengesteld. Onzerzijds wordt echter geen enkele aansprakelijkheid aanvaard voor enige onvolledigheid, onjuistheid of anderszins, dan wel de gevolgen daarvan. Alle opgegeven maten en oppervlakten zijn indicatief.

Kenmerken

Overdracht

Status
Beschikbaar
Vraagprijs
€ 295.000 k.k.
Oplevering
In overleg

Bouw

Soort woonhuis
Eengezinswoning, 2-onder-1-kapwoning
Soort bouw
Bestaande bouw
Bouwjaar
1920
Onderhoud binnen
Goed
Onderhoud buiten
Goed

Oppervlakten en inhoud

Woonoppervlakte
53m²
Perceeloppervlakte
212m²
Inhoud
210m³

Indeling

Aantal kamers
2
Aantal slaapkamers
1
Aantal verdiepingen
2
Voorzieningen
Mechanische ventilatie, TV-Kabel, Dakraam, Natuurlijke ventilatie

Energie

Energielabel
G
Isolatie
Dakisolatie, Muurisolatie, Dubbel glas
Warm water
C.V.-ketel
Verwarming
C.V.-ketel
Ketel
Avanta Remeha (2011, Combi-ketel, Eigendom)

Buitenruimte

Ligging
Aan rustige weg, In woonwijk, Beschutte ligging
Tuin
Voortuin
Schuur
Vrijstaand hout

Garage

Locatie

[ { "address": "Hoogewaard 121", "zipCode": "2396 AM", "city": "Koudekerk Aan Den Rijn", "lat": 52.1308547, "lng": 4.6044522, "heading": 0, "pitch": 0 } ]

Plattegronden

Contact opnemen
Interesse in deze woning? Vul onderstaande formulier in of bel 0172 - 491 646

Uw bericht is naar ons verzonden. Wij nemen zo snel mogelijk contact met u op.

Er is iets mis gegaan met het versturen van het formulier.
Controleer of u alle velden (goed) heeft ingevoerd en probeer het nog een keer.

×

Wat is mijn huis waard?

Ontvang binnen 5 minuten de geschatte waarde van uw woning

Bereken het nu