hollandwest gebruikt cookies om de website naar behoren te laten werken, om functies voor social media te bieden en om onze website te analyseren. Op onze website kun je ons Cookiebeleid en AVG & Privacybeleid vinden.

Pegasusstraat 214, Alphen Aan Den Rijn

Omschrijving

RUIM EN LICHT VIERKAMERAPPARTEMENT IN FIJNE WOONWIJK L’UNIVERSA OP FIETSAFSTAND VAN HET CENTRUM

ALGEMEEN
Het wooncomplex Pegasus ligt aan de rand van het bruisende Alphen aan de Rijn, een stad met volop voorzieningen. Geniet van gezellige terrassen, fijne restaurants en het uitgebreide winkelcentrum Herenhof. Ook op het gebied van onderwijs en zorg is de wijk top, met uitstekende scholen en goede medische faciliteiten in de buurt.

Nieuwsgierig geworden? Plan dan snel een vrijblijvende bezichtiging en ontdek zelf hoe fijn het wonen hier is!!

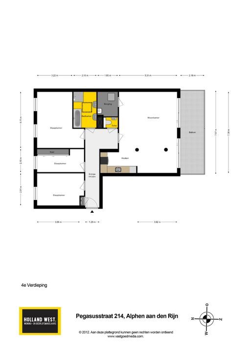
INDELING
Begane grond:
Het complex is bereikbaar via een afgesloten entree met postbussen en intercom. Met de trap of lift bereik je de vierde verdieping. De (fiets)bergingen zijn gelegen aan de buitenzijde van het gebouw.

Het appartement:
Via het portiek bereik je de entree van het appartement. Bij binnenkomst kom je in een lange hal, voorzien van garderobemogelijkheid, de meterkast en toegang tot de woonkamer, open keuken, badkamer, twee inpandige bergingen met aansluitingen voor de wasmachine en droger, en de drie slaapkamers.

De woonkamer:
De woonkamer is heerlijk licht dankzij de grote raampartijen over de volle breedte van de achterzijde, inclusief meerdere schuifpuien. Door de ruime opzet kun je de kamer op verschillende manieren indelen. Vanuit de woonkamer heb je toegang tot het balkon en de tweede inpandige berging.

De keuken:
De moderne open keuken is gesitueerd in de woonkamer. Dankzij de ruime indeling zijn er veel mogelijkheden om de ruimte naar wens in te richten. De keuken heeft strakke zwarte kastfronten met een houtkleurig werkblad. De keuken is verder uitgerust met inbouwapparatuur en een roestvrijstalen afzuigkap en biedt voldoende opbergruimte, zowel boven als onder het werkblad. Het plafond bevat een dakraam dat voor extra lichtinval zorgt, waardoor de keuken een lichte en open sfeer heeft.

De badkamer en toiletruimte:
De grotendeels betegelde badkamer is bereikbaar vanuit de centraal gelegen hal. De badkamer is modern en ruim, met lichte, witte tegels die de wanden bedekken en een donkere vloer die contrast biedt. Er is een ruime inloopdouche met glazen wanden. Daarnaast is er een vrijstaande badkuip, ideaal voor ontspanning. Twee wastafels met een grote spiegel erboven. Het dakraam zorgt voor extra natuurlijk licht, waardoor de ruimte open en luchtig aanvoelt.
De slaapkamers:
Het appartement heeft 3 slaapkamers waarvan 1 met een ruime ingebouwde kast. Alle slaapkamers zijn bereikbaar via de centraal gelegen hal en hebben grote raampartijen.

Het balkon:
De schuifpuien in de woonkamer geven toegang tot het grote balkon van maar liefst 17m2, dat gunstig gelegen is op het zuiden. Door de ruime afmetingen kun je hier een gezellige zithoeken creëren.

AFMETINGEN
Zie bijgaande plattegrondtekeningen.

Overige bijzonderheden:
- Wanneer u een appartement koopt bent u van rechtswege lid van de Vereniging van Eigenaren. De stukken van deze vereniging zijn digitaal bij ons kantoor verkrijgbaar. De servicekosten voor het appartement bedragen € 232,- per maand. De servicekosten voor de berging bedragen € 9.60 per maand.
- Om lid te worden van de Vereniging van Eigenaren betaald u eenmalig intredingskosten, de intredingskosten bedragen € 300,73.
- Koper is bekend dat het pand een voormalige huurwoning van AMVEST is. Verkoper heeft koper gemeld de woning zelf nooit te hebben bewoond en dus niet kan informeren over mogelijke gebreken van de woning. Dit risico is voor koper en daar is in de koopsom rekening mee gehouden. Koper heeft de mogelijkheid om voor zijn rekening een bouwkundige keurig te laten uitvoeren. Deze keuring dient plaats te vinden voor ondertekening van de koopovereenkomst doch uiterlijk binnen één week na mondelinge overeenkomst.
- Voor de overdracht is een vaste projectnotaris aanwezig te weten notariskantoor Caminada notarissen te Rijswijk
- AMVEST behoudt altijd het recht om de woning te gunnen aan de meest geschikte kandidaat.

Alle verstrekte informatie moet beschouwd worden als een uitnodiging tot het doen van een bod of om in onderhandeling te treden.

Deze informatie is met de nodige zorgvuldigheid samengesteld. Onzerzijds wordt echt geen enkele aansprakelijkheid aanvaard voor enige onvolledigheid, onjuistheid of anderszins, dan wel de gevolgen daarvan. Alle opgegeven maten en oppervlakten zijn indicatief.

Bijzondere bepaling:
Deze aanbieding is geheel vrijblijvend en wordt gedaan onder voorbehoud (schriftelijke) goedkeuring en ondertekening door (directie)eigenaar/eigenaresse/opdrachtgever.

Kenmerken

Overdracht

Status
Beschikbaar
Vraagprijs
€ 465.000 k.k.
Bijdrage VVE
€ 232
Oplevering
In overleg

Bouw

Soort appartement
Bovenwoning, Appartement
Woonlaag
4
Soort bouw
Bestaande bouw
Bouwjaar
2006
Onderhoud binnen
Redelijk
Onderhoud buiten
Goed

Oppervlakten en inhoud

Woonoppervlakte
111m²
Inhoud
358m³

Indeling

Aantal kamers
4
Aantal slaapkamers
3
Aantal badkamers
1
Aantal verdiepingen
1
Voorzieningen
Mechanische ventilatie, Buitenzonwering, Lift, Schuifpui

Energie

Energielabel
A
Warm water
C.V.-ketel
Verwarming
C.V.-ketel

Buitenruimte

Ligging
Aan het water, Aan rustige weg, In woonwijk, Vrij uitzicht
Tuin
Zonneterras
Schuur
Inpandig
Faciliteiten schuur
Voorzien van elektra

Garage

Locatie

[ { "address": "Pegasusstraat 214", "zipCode": "2401 HZ", "city": "Alphen Aan Den Rijn", "lat": 52.1449063, "lng": 4.6500573, "heading": 0, "pitch": 0 } ]

Plattegronden

Contact opnemen
Interesse in deze woning? Vul onderstaande formulier in of bel 0172 - 491 646

Uw bericht is naar ons verzonden. Wij nemen zo snel mogelijk contact met u op.

Er is iets mis gegaan met het versturen van het formulier.
Controleer of u alle velden (goed) heeft ingevoerd en probeer het nog een keer.

×

Wat is mijn huis waard?

Ontvang binnen 5 minuten de geschatte waarde van uw woning

Bereken het nu