hollandwest gebruikt cookies om de website naar behoren te laten werken, om functies voor social media te bieden en om onze website te analyseren. Op onze website kun je ons Cookiebeleid en AVG & Privacybeleid vinden.

Bremstraat 85, Alphen Aan Den Rijn

Omschrijving

----------------- BIEDEN VANAF € 375.000,= --------------------------------------------

De ideale start in een groene buurt – comfortabel wonen en volop potentie

Verzorgde tussenwoning aan autovrij hofje in groene woonwijk
Lichte doorzonwoonkamer met veel daglicht, kunststof kozijnen, muur- en vloer isolatie
Twee royale slaapkamers (voorheen drie) en een ruime zolder met potentie voor extra kamer(s)
Zonnige achtertuin op het westen, ideaal voor middag- en avondzon, met vrijstaande berging
Toplocatie en op loopafstand van park Zegersloot, scholen, winkels en openbaar vervoer


ALGEMEEN
In de populaire en groene Weidebloemenbuurt ligt deze verrassend ruime tussenwoning – een ideale kans voor starters of jonge gezinnen die op zoek zijn naar een comfortabel (t)huis op een rustige en kindvriendelijke plek.

De woning ligt aan een autovrij hofje, wat zorgt voor volop rust, veiligheid én een fijne woonomgeving met veel privacy. Binnen is het heerlijk licht dankzij de ruime doorzonwoonkamer, terwijl de gesloten keuken direct toegang biedt tot de zonnige achtertuin op het westen – een heerlijke plek om te ontspannen of om kinderen zorgeloos te laten spelen.
Op de eerste verdieping vind je twee volwaardige slaapkamers en een modern afgewerkte badkamer, samen met een strak gerenoveerd separaat toilet. De woning is goed onderhouden en voorzien van kunststof kozijnen en vloer- en muurisolatie – een fijne basis voor comfortabel wonen.
De ruime zolderverdieping biedt volop mogelijkheden voor het realiseren van een vierde slaapkamer, werkplek of hobbyruimte. Hier creëer je eenvoudig extra woonoppervlak, helemaal naar eigen wens.

De ligging? Perfect. Je woont hier op loopafstand van het prachtige park Zegersloot, scholen, winkels en openbaar vervoer. Alles wat je nodig hebt is dichtbij, terwijl je thuis geniet van rust, groen en ruimte.


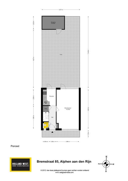
Indeling
Via de verzorgde voortuin bereik je de entree van de woning. In de lichte hal bevinden zich de meterkast, het gemoderniseerde wandtoilet, de trapopgang en de toegang tot de woonkamer.
De doorzonwoonkamer voelt direct ruim en licht aan dankzij de grote raampartijen aan beide zijden. Aan de achterzijde bevindt zich de gesloten keuken met uitzicht op de tuin en directe toegang tot het terras – perfect om op zomerse dagen binnen en buiten moeiteloos met elkaar te verbinden.

Op de eerste verdieping zijn twee ruime slaapkamers te vinden, samen met een nette en lichte badkamer voorzien van een douche, modern wastafelmeubel en een tweede toilet, comfortabel en praktisch voor dagelijks gebruik. De oorspronkelijke badkamer is nu in gebruik als wasruimte met opstelling van de wasmachine en de wasdroger

De tweede verdieping is momenteel bereikbaar via een vlizotrap en biedt volop mogelijkheden voor uitbreiding. Hier is ruimte voor één of zelfs twee dakkapellen (voor- en achterzijde), waarmee eenvoudig een volwaardige extra slaapkamer of werkkamer gecreëerd kan worden.

De achtertuin ligt op het westen en geniet daardoor van zon tot in de avonduren – een heerlijke plek om te ontspannen. Achterin de tuin bevindt zich een ruime stenen berging, ideaal voor fietsen, tuingereedschap of extra opslag. Parkeren kan in de directe omgeving, waar doorgaans voldoende ruimte is.

Omgeving
De woning ligt in een rustige en kindvriendelijke buurt, omgeven door veel groen en diverse speelvoorzieningen. Een heerlijke woonomgeving waar kinderen veilig buiten kunnen spelen en waar je zelf kunt genieten van de rust en ruimte. Op loopafstand vind je het geliefde Park Zegersloot, een veelzijdig recreatiegebied met een kinderboerderij, klimbos, golfclub, wandelroutes en gezellige horecagelegenheden – perfect voor een ontspannen dag in de natuur. Voorzieningen zoals basisscholen, kinderopvang, winkelcentrum De Ridderhof en zwembad Aquarijn zijn allemaal in de directe omgeving te vinden. Ook de bereikbaarheid is uitstekend: het busstation ligt vlakbij, waarmee je binnen enkele minuten bij het NS-station van Alphen aan den Rijn bent. Met de auto ben je snel op de uitvalswegen richting Leiden, Schiphol, Den Haag en Utrecht.

BIJZONDERHEDEN
Kunststof kozijnen
Badkamer en toilet gerenoveerd
Separate wasruimte met de opstelling voor wasmachine en wasdroger
Vloer- en muurisolatie
Zonnige tuin op het westen
Autovrije ligging aan hofje
Twee slaapkamers + een zolder met mogelijkheden
Ruime stenen berging
Kindvriendelijke woonomgeving met park en speelveld om de hoek
Deze woning is een goede basis en heeft volop mogelijkheden voor de toekomst. Interesse? Neem contact op voor een bezichtiging. We laten je deze woning graag van binnen zien.

Kenmerken

Overdracht

Status
Beschikbaar
Vraagprijs
€ 375.000 k.k.
Oplevering
In overleg

Bouw

Soort woonhuis
Eengezinswoning, Tussenwoning
Soort bouw
Bestaande bouw
Bouwjaar
1967
Onderhoud binnen
Goed
Onderhoud buiten
Goed

Oppervlakten en inhoud

Woonoppervlakte
71m²
Perceeloppervlakte
121m²
Overig oppervlakte
5m²
Inhoud
291m³

Indeling

Aantal kamers
4
Aantal slaapkamers
2
Aantal badkamers
1
Aantal verdiepingen
3
Voorzieningen
Mechanische ventilatie, TV-Kabel, Buitenzonwering

Energie

Energielabel
B
Isolatie
Vloerisolatie
Warm water
C.V.-ketel
Verwarming
C.V.-ketel
Ketel
Vailliant (2007, Combi-ketel, Eigendom)

Buitenruimte

Ligging
In woonwijk
Tuin
Achtertuin
Schuur
Vrijstaand steen
Faciliteiten schuur
Voorzien van elektra

Garage

Locatie

[ { "address": "Bremstraat 85", "zipCode": "2403 EL", "city": "Alphen Aan Den Rijn", "lat": 52.1462659, "lng": 4.6830872, "heading": 0, "pitch": 0 } ]

Plattegronden

Contact opnemen
Interesse in deze woning? Vul onderstaande formulier in of bel 0172 - 491 646

Uw bericht is naar ons verzonden. Wij nemen zo snel mogelijk contact met u op.

Er is iets mis gegaan met het versturen van het formulier.
Controleer of u alle velden (goed) heeft ingevoerd en probeer het nog een keer.

×

Wat is mijn huis waard?

Ontvang binnen 5 minuten de geschatte waarde van uw woning

Bereken het nu