hollandwest gebruikt cookies om de website naar behoren te laten werken, om functies voor social media te bieden en om onze website te analyseren. Op onze website kun je ons Cookiebeleid en AVG & Privacybeleid vinden.

Wilhelminalaan 18, Alphen Aan Den Rijn

Omschrijving

REPRESENTATIEVE KANTOORRUIMTE IN HARTJE CENTRUM

• Representatieve kantoorruimte gelegen op de begane grond
• Kantoorruimte met een oppervlakte van circa 118 m2 BVO
• Huurprijs is excl. servicekosten
• Gelegen aan de “Hoge Zijde”, direct nabij grootwinkelketens als Mediamarkt, H&M, alsmede het Rijnplein met het
theater Castellum.
• Oplevering : in overleg

ALGEMEEN
Op een goed bereikbare locatie midden het centrum van Alphen aan den Rijn bevindt zich in de Wilhelminalaan deze representatieve kantoorruimte op de begane grond.

Een zeer aantrekkelijke locatie omdat je er heel prettig kunt werken, terwijl je toch midden in het centrum van Alphen zit. Een pauze-wandeling maken en een boodschap doen is gemakkelijk en een meerwaarde van deze plek.

BEREIKBAARHEID/ PARKEREN
De Wilhelminalaan is per auto en openbaar vervoer goed te bereiken. De snelwegen naar Den Haag, Amsterdam, en Utrecht bevinden zich op 10-15 autominuten. De afstand naar de bushalte is enkele minuten en binnen 10 minuten loopafstand is het NS station van Alphen aan den Rijn bereikbaar.

Betaald parkeermogelijkheden direct voor de deur, alsmede in de op loopafstand gelegen parkeergarage Castellum met een capaciteit van circa 750 plaatsen.

De gemeente geeft parkeervergunningen uit voor bedrijven welke gevestigd in het betaald parkeergebied. Voor de tarieven van deze vergunningen verwijzen wij u naar de site van de gemeente www.alphenaanderijn.nl

U kunt ook gebruik maken van de website van Parkmobile.
Via deze site kunt u de parkeerkosten van uw klanten voor uw rekening nemen,
Voor u makkelijk en eenvoudig. Voor uw klanten zeer gastvrij !

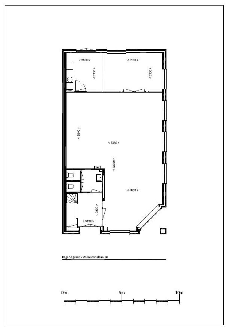
OPPERVLAKTE / INDELING
De beschikbare ruimte is 118 m2 BVO (exclusief 18 m2 BVO gezamenlijk entree en toiletgroepen). Een grote open kantoorruimte met nog wel een aparte directie-/spreekkamer en een afgesloten keukenruimte.

OPLEVERINGSNIVEAU
De kantoorruimte zal opgeleverd worden met het navolgende opleveringsniveau:
- gezamenlijke entree voorzien van trappenhuis;
- de centrale hal is beschermd door middel van een rolluik.
- vloerafwerking vinyl;
- intercomsysteem;
- inbraakinstallatie;
- systeemplafonds met LED verlichtingsarmaturen;
- Het pand heeft een CV én een warmtepompsysteem, de ventilatie gaat met WTW.
- scheidingswanden ten behoeve van separate spreekkamer.
- Voorzien van glasvezel (er is per verdieping een eigen aansluiting);
- openslaande ramen;
- gemeenschappelijke toiletgroep (D&H);
- pantry;
- raam- en vloerbekleding;

HUURPRIJS
Te vermeerderen met de wettelijk verschuldigde omzetbelasting en servicekosten.

HUURTERMIJN
5 (vijf) jaar met aansluitende verlengingsperiode(n) van telkens 5 (vijf) jaar.
Eventuele andere huurtermijnen zijn in overleg met verhuurder bespreekbaar

OPLEVERING
2e Kwartaal 2020 of anders in overleg

SERVICEKOSTEN
De servicekosten bedragen € 150 ,= per maand, te vermeerderen met de wettelijk verschuldigde omzetbelasting.
Inclusief:
- gasverbruik inclusief vastrecht;
- elektriciteitsverbruik inclusief vastrecht t.b.v. installaties;
- waterverbruik inclusief vastrecht;
- onderhoud en periodieke controle van verwarmings- en/of luchtbehandelingsinstallatie;
- sanitaire voorziening, zeep, toiletpapier e.d.;
- schoonmaken van de gemeenschappelijke ruimten;
- glasbewassing buitenzijde;
- assurantie premie buitenbeglazing;
- elektra verbruik zal door middel van tussenmeter worden geregistreerd;
- administratiekosten (kostprijs) over de hierboven omschreven leveringen en diensten.
Het voorschotbedrag kan door de verhuurder worden aangepast op basis van werkelijk gemaakte kosten.

BTW
Huurder garandeert aan verhuurder dat hij het huurobject per datum van ingang van de huurovereenkomst voor tenminste het bij de wet vastgestelde minimumpercentage blijvend zal gebruiken voor doeleinden die recht geven op aftrek van btw.
Huurder zal op eerste verzoek van verhuurder per ommegaande een onherroepelijke volmacht aan verhuurder en zijn eventuele rechtsopvolger(s) verlenen om mede namens hem een optieverzoek tot belaste verhuur in te dienen.
Indien huurder echter niet (meer) voldoet aan de wettelijke criteria voor belaste verhuur of een optieverzoek tot belaste verhuur niet (meer) door de inspecteur der belastingen wordt gehonoreerd, dan zal huurder het gehele daardoor financieel te lijden nadeel voor verhuurder aan verhuurder vergoeden, overeenkomstig de ter zake op te nemen bijzondere bepalingen van de huurovereenkomst.

ZEKERHEIDSTELLING
Bij ondertekening van de huurovereenkomst zal huurder een bankgarantie stellen of waarborgsom storten ter grootte van (minimaal) 3 kalendermaanden huur en eventuele servicekosten, alsmede de hierover verschuldigde omzetbelasting.

HUURBETALING
De huurpenningen en BTW dienen te worden voldaan bij vooruitbetaling per maand.

HUURPRIJSHERZIENING
Jaarlijks, voor het eerst één jaar na ingangsdatum van de huurovereenkomst, op basis van de wijziging van het maandindexcijfer volgens de consumentenprijsindex (CPI) reeks “alle huishoudens” (2006=100), gepubliceerd door het Centraal Bureau voor de Statistiek (CBS).

HUURCONTRACT
Volgens standaard model Raad voor Onroerende Zaken met bijbehorende algemene bepalingen.

KADASTRALE GEGEVENS
Gemeente Alphen aan den Rijn
Sectie: A
Nummer: 6309 gedeeltelijk
Omschrijving: BEDRIJVIGHEID (KANTOOR)

BIJZONDERHEDEN
Elke transactie behoeft de nadrukkelijke goedkeuring van de eigenaar.

Kenmerken

Overdracht

Prijs
€ 17.500 p.j.
Servicekosten
€ 150
Status
Verhuurd

Bouw

Hoofdbestemming
Kantoorruimte
Bouwjaar
1992
Onderhoud binnen
Uitstekend
Onderhoud buiten
Uitstekend

Oppervlakten

Totaaloppervlakte
118m²
Units vanaf
118m²

Indeling

Verdiepingen
1
Voorzieningen
Inbouwarmaturen, Te openen ramen, Kabelgoten, Systeemplafond, Toilet, Pantry, Verwarming, Kamerindeling

Omgeving

Ligging
stadscentrum / dorpskern, woonomgeving

Locatie

[ { "address": "Wilhelminalaan 18", "zipCode": "2405 ED", "city": "Alphen Aan Den Rijn", "lat": 52.1314187, "lng": 4.6622708, "heading": 0, "pitch": 0 } ]

Dit bedrijfsobject is niet meer beschikbaar

Het is helaas niet meer mogelijk om hierop te reageren. Op zoek naar een vergelijkbaar bedrijfsobject? Neem dan contact met ons op!


Bel 0172-491646   info@hollandwest.nl


×

Wat is mijn huis waard?

Ontvang binnen 5 minuten de geschatte waarde van uw woning

Bereken het nu