hollandwest gebruikt cookies om de website naar behoren te laten werken, om functies voor social media te bieden en om onze website te analyseren. Op onze website kun je ons Cookiebeleid en AVG & Privacybeleid vinden.

Raadhuisstraat 223, Alphen Aan Den Rijn

Omschrijving

WINKELRUIMTE IN ÉÉN VAN DE AANLOOPSTRATEN NAAR DE HOOFDWINKELSTRAAT VAN ALPHEN AAN DEN RIJN

Gelegen in het centrum van Alphen aan den Rijn,
In een aanloopstraat naar de hoofdwinkelstraat
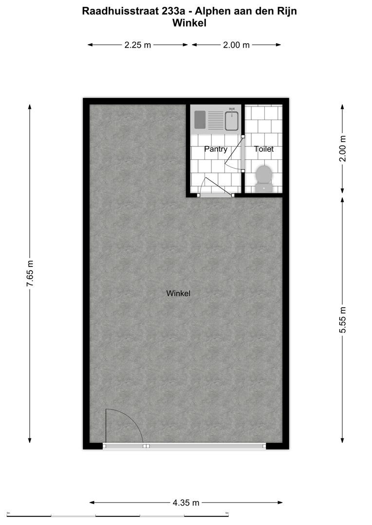
Totale vloeroppervlakte van circa 33 m2 BVO

ALGEMEEN
Gelegen midden in het centrum in een pittoreske winkelstraat bieden wij een kleine winkel-/ kantoorruimte te huur aan. Een representatieve ruimte midden in het hart van het centrum.

In de winkelstraat zijn onder andere gevestigd:
Hans Anders
Woonwinkel ’t Woonhuys
Running & Walkingcenter Alphen aan den Rijn
TOF Touch Of Fashion
Kinki Kappers
Pizzeria Is Morus
Restaurant Noël
Grieks restaurant Olympia

LOCATIE
De Raadhuisstraat is een zijstraat van de A1 kruising met de Van Mandersloostraat.
De winkels kunnen tot 12 uur bevoorraad worden, daarna is dit gedeelte van het centrum afgesloten voor gemotoriseerd vervoer.

BEREIKBAARHEID
De locatie is goed bereikbaar zowel met de auto als per openbaar vervoer.
De snelwegen naar Den Haag, Amsterdam en Utrecht bevinden zich op 10-15 autominuten. De bushalte en het NS station zijn binnen 10 minuten lopen bereikbaar.

VLOEROPPERVLAKTE
De totale oppervlakte bedraagt circa 33 m² BVO.
Zie bijgaande plattegrondtekening.

OPLEVERINGSNIVEAU
De winkelruimte wordt contractureel als casco verhuurd.
Het pand is thans voorzien van :
Oude pantry met boiler tbv warm water;
Toilet;
Radiatoren tbv verwarming.

PARKEREN
Betaald parkeermogelijkheden op het nabij gelegen parkeerterrein gelegen aan de Hofzichtstraat en in de op loopafstand gelegen parkeergarage Castellum alsmede op het parkeerdak van winkelcentrum De Aarhof.
De Gemeente geeft parkeervergunningen af voor bedrijven gevestigd in het betaald parkeergebied. Voor de tarieven van deze vergunningen verwijzen wij u naar de site van de gemeente www.alphenaandenrijn.nl;

WELSTANDSKLASSE
B1.

FRONTBREEDTE
Circa. 4,35 meter.

BESTEMMING / BESTEMMINGSPLAN
Centrum 2, zie bijlage, dan wel via de website www.ruimtelijkeplannen.nl
Onder andere is toegestaan:
Detailhandel
Dienstverlening
Ambachtelijke bedrijvigheid
Maatschappelijke voorzieningen

HUURTERMIJN
Huurperiode van 5 jaar gevolgd door verlengingstermijnen van telkens 5 jaar.
Ieder ander voorstel zal voorgelegd worden aan verhuurder.

OPZEGTERMIJN
12 maanden.

HUURPRIJSBETALING
De totale betalingsverplichting dient per maand vooruit te worden voldaan.

ZEKERHEIDSTELLING
Bij ondertekening van de huurovereenkomst zal huurder een bankgarantie stellen of waarborgsom storten ter grootte van een (minimale) bruto betalingsverplichting van
3 kalendermaanden, alsmede de hierover verschuldigde omzetbelasting.

HUURINDEXATIE
De huurprijs zal jaarlijks, voor het eerst op 01 januari 2020, worden verhoogd op basis van de consumentenprijsindex (CPI) zoals wordt gepubliceerd door het Centraal Bureau voor de Statistiek (CBS). Vanaf 1 januari 2016 heeft het CBS het basisjaar voor de CPI verlegd naar 2015 = 100.

HUURPRIJSHERZIENING
Jaarlijks, voor het eerst één jaar na ingangsdatum van de huurovereenkomst, op basis van de wijziging van het maandindexcijfer volgens de consumentenprijsindex (CPI) reeks “alle huishoudens”(2015=100), gepubliceerd door het Centraal Bureau voor de Statistiek (CBS).

HUUROVEREENKOMST
De huurovereenkomst zal zijn gebaseerd op het model zoals is vastgelegd door de Raad voor Onroerende Zaken (ROZ) 2012, inclusief de algemene bepalingen.

AANVAARDING
In overleg.

BIJZONDERHEDEN
Elke transactie behoeft de nadrukkelijke goedkeuring van de eigenaar.

HUUROVEREENKOMST
Huurovereenkomst conform het standaardmodel van de Raad van Onroerende Zaken (ROZ), zoals gehanteerd door de Nederlandse vereniging van Makelaars

BEZICHTIGINGEN
Bezichtigingen uitsluitend op een daartoe afgesproken tijdstip met Holland West Makelaardij B.V.
Voor nadere informatie en/of een bezichtiging: 0172-491646 of info@hollandwest.nl

Kenmerken

Overdracht

Prijs
€ 795 p.m.
Status
Verhuurd

Bouw

Hoofdbestemming
Winkelruimte
Bouwjaar
1914
Onderhoud binnen
Goed
Onderhoud buiten
Goed

Oppervlakten

Totaaloppervlakte
33m²
Verkoopoppervlakte
33m²

Indeling

Verdiepingen
1

Omgeving

Ligging
stadscentrum / dorpskern, woonomgeving
Welstandklasse
B1

Locatie

[ { "address": "Raadhuisstraat 223", "zipCode": "2406 AD", "city": "Alphen Aan Den Rijn", "lat": 52.12684, "lng": 4.6631336, "heading": 0, "pitch": 0 } ]

Documenten

Dit bedrijfsobject is niet meer beschikbaar

Het is helaas niet meer mogelijk om hierop te reageren. Op zoek naar een vergelijkbaar bedrijfsobject? Neem dan contact met ons op!


Bel 0172-491646   info@hollandwest.nl


×

Wat is mijn huis waard?

Ontvang binnen 5 minuten de geschatte waarde van uw woning

Bereken het nu